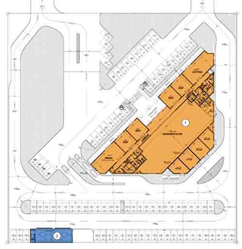
Nuwaiseeb Rest Area
The project aims to develop the Nuwaiseeb rest area on the highway, which has an area of 10,000 square meters. The project contains restaurants, cafes and a supermarket.

Project sections
- Central Market
- Car maintenance area
Time Lapse Video
Please note that the time-lapse video will be updated on a monthly basis.
3D Render
Amenities
Personal Chef
Private Pool
Jacuzzi
Sunrooftop


